Достоинства бань из кирпича
Если вы хоть немного владеете техникой кладки кирпича, вы можете выстроить баню своими руками. Даже если и не умеете класть кирпич, этому можно научиться. Желательно, поприсутствовать на строительстве, посмотреть на процесс, позадавать вопросы. Но если такой возможности нет, есть вполне толковые видеоматериалы о том, как класть кирпич
Только обратите особое внимание на правильность возведения углов — от них зависит геометрия и прочность здания
Если сравнивать с деревянными банями, то есть три весомых плюса:
- кирпич не гниет и не повреждается болезнями и грибками;
- сразу после возведения можно приступать к установке окон дверей и отделочным работам — он не дает такой сильной усадки, как древесина;
- кирпич не горит, потому в плане пожарной безопасности они менее опасны.
Получается, что трудоемкость кладки, с лихвой возмещается отсутствием усадки. В результате париться можно будет намного раньше.
Кирпичные бани имеют солидный вид
Как можно выбрать подходящую баню
Намереваясь поставить баню на участке, дачники предварительно определяются с её параметрами. То же самое происходит и с внутренним разграничением.
По фото планировки бани, найденному в интернете или в каталоге организации, куда они обращаются за помощью, проще определиться с искомым вариантом.
Одновременно подбирается внешний вид: наружная высота, тип крыши, пристройка террасы.
Размеры строения влияют на стоимость, равно как и основные строительные материалы
Дополнительно важность имеет конфигурация сооружения.
Независимо от внешнего вида конструкции, прорабатываются вопросы, связанные с удобной эксплуатацией современных бань.
Кроме внутренней планировки, данная сфера включает в себя наладку нескольких важных функционирующих зон:
- систему внутреннего водоснабжения и отопления;
- устройство естественной и принудительной вентиляции;
- разводку электропроводки и соответственно создание искусственного освещения в дополнение к естественному;
- вывод канализации и расположение системы стоков с учётом установки септика.
Пеноблоки: особенности и характеристика
Традиционно баню возводят из древесных материалов, таких как брус, бревно и т. д. Они хороши всем, кроме разве что необходимости постоянного ухода, так как дерево под воздействием сырости начинает достаточно быстро гнить. Без определенной заботы баня из дерева очень быстро потеряет первозданный вид.
Проекты бань из пеноблоков
Но в последнее время бани нередко строят из пеноблоков. Этот материал является прекрасной альтернативой традиционному дереву, так как имеет массу достоинств и в ряде случаев даже превосходит по своим характеристикам дерево. Пеноблок – это блок определенного размера, сделанный из пенобетона или ячеистого бетона. Новинкой на строительном рынке он уже давно не является, но ранее использовался гораздо реже, чем сейчас, благодаря тому, что основной его недостаток – гигроскопичность из-за высокой пористости – удается победить.
Пеноблок
Впрочем, именно в наличии пористости и заключается главная особенность таких материалов. Благодаря ей пеноблоки обладают отличным уровнем теплоизоляции, способны прекрасно сохранить тепло в любом строении, а также не являются слишком уж тяжелыми материалами. Поры внутри блока могут иметь различный размер и располагаются хаотично по всей его внутренней части.
Пенобетон — процесс производства
Планировка бань с бассейном
Баня с бассейном состоит из целого комплекса основных и вспомогательных помещений:
- предбанник;
- парилка;
- помывочная;
- бассейн;
- душ;
- раздевалка;
- комната отдыха;
- помещение для хранения дров;
- санузел;
- котельная или техническое помещение.
Внутренняя планировка бани с бассейном в большинстве случаев стандартная. Так, бассейн может находиться внутри бани или в пристройке. Парилку и душ для удобства размещают вблизи купели, оборудуют отдельным выходом. В хранилище для топлива устраивают 2 входа – с улицы и из здания. Комната отдыха должна располагаться рядом с помывочной и иметь выход в бассейн. Помещение для технического обслуживания отдаляют от всех остальных.
Вариант планировки бани с бассейномИсточник sokurnso.ru
Если подойти к делу с размахом, баню можно выстроить как мини-комплекс для досуга – предусмотреть комнаты для бильярда, приготовления пищи, мансарду для гостей, террасу, площадку для барбекю.
Если помещение бассейна оборудовать сдвигающейся крышей, в теплое время года можно совместить водные процедуры с воздушными ваннами.
Панорамное остекление позволит любоваться красивым видом сада, не выходя из бани. Его монтируют из двухкамерных энергосберегающих стеклопакетов.
Панорамное остекление в бане с бассейномИсточник erp-mta.ru
Для любителей попариться устраивают русскую и турецкую парилки, финскую сауну, которые отделывают в фольклорном стиле.
Если места на участке мало, выходом станет строительство угловой бани.
В этом видео показан обзор проекта бани с бассейном 4*3*2:
Баня с бассейном на свежем воздухе
Простой и недорогой вариант – деревянная купель на террасе под навесом. Ее устанавливают на возвышении или помосте. Воду подогревают электрическими приборами, встроенными в корпус. От чужих глаз зону отделяют живой изгородью или вьющимися растениями на опорах. Рядом с зоной купания размещают шезлонги, столики для напитков.
Баня с бассейном на улицеИсточник pinterest.com
Можно на ровное основание установить каркасный или надувной бассейн. В теплую погоду он вполне заменит стационарный из железобетона.
Освещают территорию вечером электрическими или светодиодными светильниками на аккумуляторах.
Проект бани из бруса с бассейном
Всесезонный вариант – бассейн под одной крышей с баней. Проект традиционной парилки из клееного бруса составляют на основе чертежа фасадов и плана этажа. Обязательно предусматриваются такие пункты:
- Фундамент – ленточный, столбчатый, свайный в зависимости от типа грунта и рельефа.
- Наружные стены – клееный брус 100х150 или 150х150 мм для регионов с холодными зимами.
- Внутренние перегородки – тот же брус.
- Обшивка стен наружная – плиты ЦСП.
- Отделка внутренняя – кедровая вагонка.
- Перекрытия – клееный брус 100х150 мм.
- Крыша – двускатная, вальмовая или ломаная для мансард. Стропильная система из доски или бруса.
- Кровля – из ондулина, профлиста, металлочерепицы.
- Теплоизоляция – минеральная базальтовая вата.
- Гидро-, пароизоляция – защитные мембраны, пленка с фольгой или без.
- Полы – по керамзитной засыпке, бетонная черновая стяжка, гидроизоляция из рубероида, финишное покрытие по желанию застройщика.
- Для бассейна и печи-каменки – отдельный фундамент из монолитного железобетона толщиной 200 мм по щебеночной подсыпке.
- Чаша – готовая акриловая или железобетонная с проникающей гидроизоляцией. Отделка – керамическая плитка для бассейнов с нескользящей поверхностью.
Проект бани с бассейномИсточник retrolot.ru
Заключение
Проекты бань с бассейном под одной крышей совмещают архитектурную выразительность, современные требования к строительству объектов с гидротехническими сооружениями, технологичность возведения, оптимальное использование материалов, а также учитывают индивидуальные пожелания застройщика.
Как определиться с размером
Прежде чем погрузиться в увлекательные поиски подходящей бани, полезно определиться с площадью будущего приобретения; это поможет с ходу отсеять неподходящие по габаритам варианты и сэкономить массу времени. Желательные минимальные размеры бани задаются размерами трех помещений: раздевалки, моечной и парной, с учетом следующих факторов:
- По нормам СНиП на одного посетителя должно приходиться от 3 до 4 м2 полезной площади (за вычетом площади, занятой печью и другими девайсами).
- Оценивается среднее количество посетителей, которые будут пользоваться баней одновременно.
- Тамбур. Крайне необходимое помещение, уменьшающее потери тепла и защищающее от сквозняков.
Тамбур – помещение, от которого не стоит отказыватьсяИсточник remont.jollow.me
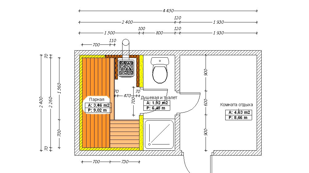
Если банными процедурами будут одновременно наслаждаться три человека, то минимально допустимой площадью будет считаться 12 м2, из которых на тамбур придется 1 м2, на предбанник и душевую – 5 м2, на парную – 6 м2.
Если вам по душе традиционная планировка из двух помещений (когда раздевалка совмещена с комнатой отдыха, а парная с моечной), обратите внимание на бани 3х4 или 3х5 м. Если вы хотите иметь отдельную моечную (установить душевую кабину), более комфортным станет вариант с размерами 4х4 или 4х6 м
Где разместить?
Планируя баню, необходимо заранее выделить ей место на дачном участке. Учитывать придется множество факторов, например, уровень залегания грунтовых вод, поэтому к данному вопросу следует подойти как можно серьезнее.
Специалисты рекомендуют размещать бани на берегу водоемов на пригорке:
- Так вода во время весеннего паводка не подтопит сооружения;
- При соблюдении правильного уклона стекающие сточные воды не смогут его загрязнить.
Окна стоит устанавливать на западной стороне бани, так как здесь больше солнца. В традиционной русской баньке окошко всего одно – в предбаннике, но в современных моделях, безусловно, поступающего света гораздо больше. Входную дверь советуют размещать с южной стороны, где в холодное время года будет меньше снега.
Установлены также требования к промежутку между банькой и ближайшими постройками. Баня должна находиться не менее чем в 10 метрах от дома и в 3 метрах от границы дачного участка, то есть забора, чтобы обеспечить доступ к строению со всех сторон в случае пожара. Расстояние до колодца должно быть около 20 метров.
Вообще, самым лучшим вариантом будет разместить баню в отдельной зоне отдыха, подальше от главного здания. Рядом можно разместить бассейн или искусственное озеро, чтобы окунаться в воду после жаркой парилки.
Популярные проекты домиков с баней для гостей
Проект небольшого гостевого дома 6х6 подойдет для возведения на небольшом дачном участкеИсточник s-sauna.com
Очень компактный, но при этом вместительный гостевой дом с баней и мансардным этажом. Несмотря на скромные размеры, помимо обязательных парной и душевой здесь есть все необходимые помещения для полноценного отдыха: холл, кухня-столовая и спальни. Вместо крыльца на входе расположена большая открытая терраса, на которой можно провести время на свежем воздухе.
Дом 7,1 на 6,9 м с террасой под крышейИсточник prefer.ru.net
Планировка второго этажа дома баниИсточник anapasunsity.ru
Несмотря на бо́льший периметр постройки, полезная площадь этого гостевого домика ограничена размерами 5,5 на 5,5 метра не считая террасы. Даже таких размеров вполне достаточно для временного или постоянного проживания небольшой семьей или периодическими посещениями дружеской компании.
Угловой дом с парной – еще одно необычное решение с возможностью сэкономить пространствоИсточник dom-usadba.com.ua
Угловой одноэтажный гостевой домик с баней – это интересное решение для небольшого участка. Здесь есть все необходимое для отдыха, но переночевать, при необходимости, получится, только разместившись на диване в комнате отдыха – отдельных спален в домике не предусмотрено.
Идеи для наполнения
Из обязательных помещений в бане считается тамбур, он должен быть в любом капитальном строение. Его задача заключается в том, чтобы холодный уличный воздух не охлаждал внутреннее пространство бани. И, как правило, такое помещение не отапливается.
В ограниченном пространстве тамбур может быть сделан в качестве закутка с двумя дверями. Но если вы планируете использовать баню только в летний дачный сезон, то нет необходимости в тамбуре.
Раздевалка относится к категории необязательных помещений. Она может находиться в тамбуре или предбаннике. Но в таком случае стоит определиться, куда будут вести двери из раздевалки: в моечную или комнату отдыха. При этом каждый хозяин выбирает подходящий для себя вариант.
Классическая русская баня предполагает совмещение парной с моечной. Но многим такое решение кажется неудобным. По возможности необходимо обустроить мойку и парилку отдельно. К тому же, это необходимое правило для финской сауны, влажность в которой не должна превышать 25%.
На сегодняшний день соорудить баню с бассейном может позволить себе практически каждый. Бассейн может находиться как под одной крышей, так и неподалеку от бани. Большим спросом в последнее время пользуются готовые конструкции чаш глубиной от 1 метра. При желании внутреннюю отделку можно выполнить мозаичной плиткой, а также установить внутреннюю подсветку или гидромассаж.
Интересные проекты предусматривают постройку бани с беседкой и мангалом под одной крышей. Несомненно, это удачный вариант для гостеприимных хозяев. И если площадь всей постройки позволяет, то в комнате отдыха можно разместить бильярдную или кальянную. А если вы хотите построить баню с туалетом, то в таком случае необходимо провести канализацию.
Русская
В русской бане, как правило, средняя температура достигает 45-70 °С. В связи с этим пар конденсирует и оседает на теле, благодаря чему оно очищается от разного типа загрязнений. Из-за горячего влажного воздуха происходит прогрев всего тела и организма в целом.

Русская парная по-черному
Конструкция состоит из трех основных частей:
- предбанник – может быть холодного типа и предназначаться для раздевания и одевания, размещения одежды. Теплый предбанник предназначен для проведения свободного времени и общения. В первом случае оборудован только вешалками, полочками и шкафчиками, во втором – дополнительно может быть установлен стол, стулья, диваны, шкафчики для хранения посуды, предназначенной для чаепития. В отдельных случаях устанавливаются телевизоры, а также другая техника;
- парная – здесь происходит основной процесс паровой обработки тела. Она самая сложная по конструкции, и в обязательном порядке там должна быть печь, которая прогревает камни, которые впоследствии обдаются жидкостью и образуют пар. Для удобного размещения посетителей обязательно устанавливаются лежаки, или, как их называют по-другому, полки;
- помывочная – предназначена для купания с применением химических средств личной гигиены, поэтому там располагаются лавочки для размещения тазов и ведер, но в современных условиях такие помещения обустраивают ванной или душевой кабиной. Также там должны быть шкафчики и полочки для размещения емкостей с мылом, гелями, шампунем и другими средствами.

Расчет необходимой площади
1
4




Варианты планировки бани
Основными помещениями в бане являются парилка, моечная и предбанник. В зависимости от размеров бани при внутреннем планировании здания можно добавить санузел, комнаты отдыха, спальни и даже бассейн. Также проекты бань с террасой под одной крышей, предусматривают наличие мансарды, балкона и беседки. Не исключением являются и проекты бань с комнатой отдыха закрытого типа.
Видео описание
Обратившись в строительную организацию, можно выбрать понравившийся проекты бани с комнатой отдыха и террасой из каталога
Но на что обратить внимание при выборе материала для бани, смотрите в следующем видео:. https://www.youtube.com/embed/Sskz64a8AJg
Вариантов достаточно много, но среди них условно можно выделить три, взяв за основу этажность постройки и ее размеры: одноэтажные бани; двухэтажные или бани с мансардой; банные коттеджи.
Одноэтажные бани
По сути, представляют собой как небольшие домики с минимальным набором комнат (парилка и моечная), обеспечивающим комфортное времяпровождение, так и большие одноэтажные дома с расширенным набором комнат, включая санузлы и комнаты отдыха. Кроме этого зона отдыха может быть вынесена за пределы бани на террасу или веранду. Выбирая проект большой одноэтажной бани с зоной барбекю можно не переживать где разместить отдыхающих гостей, так как зона отдыха делиться на две части – комната внутри бани и терраса.
Одноэтажная баня с минимальным набором комнатИсточник ro.decorexpro.com
Двухэтажные бани
Бани с полноценным вторым этажом встречаются крайне редко – чаще такими называют бани с мансардой. В любом случае, благодаря наличию добавочного этажа увеличивается полезная площадь застройки и комнат отдыха можно сделать уже две: одну на первом этаже, вторую – на втором. Благодаря дополнительным площадям баня может вместить большее количество отдыхающих людей, что является отличным вариантом для отдыха большой компанией. Недорогой проект двухэтажной бани с террасой предполагает наличие двух комнат отдыха и террасы.
Баня с мансардой и террасой. План 1-го и 2-го этажейИсточник dachmir.ru
Банные коттеджи
Это большие банные комплексы с зонами отдыха на улице, несколькими комнатами отдыха внутри дома, спальнями, бассейном и кухней. Это место для отдыха не только телом, но и душой. Чаще всего такой комплекс строится для последующей сдачи в аренду. Обслуживание такого здания требует больших затрат, что является нерентабельным для частного использования.
Банный комплекс площадью 250 м²Источник makemone.ru
Проекты бань с террасой и барбекю: фото разных вариантов
Готовая баня с верандой или террасой может выглядеть совершенно по-разному:
Одноэтажная баня из пеноблоков с большой террасой и барбекюИсточник pinterest.com
Баня из оцилиндрованного дерева с пристроенной беседкой для барбекюИсточник proektanti.ru
Закрытая веранда к бане, фото ниже, позволит проводить отдых с комфортом и в зимнее время:
Баня из бруса с верандой и барбекюИсточник lesstroy.net
Небольшая баня с террасой и барбекю под одной крышейИсточник www.pinterest.at
Баня с террасой и беседкой с барбекюИсточник 9ban.ru
Маленькая баня с зоной для барбекюИсточник divosrub.ru
Пример отделки террасы с барбекюИсточник krov-torg.ru
Одноэтажная баня с барбекюИсточник viq.lebucos.ru.net
Проект банного комплекса с дополнительной зоной отдыха на улице, барбекю и бассейномИсточник realtor.com
Уютная баня с необычной крышей, большой зоной отдыха и барбекюИсточник tehno-mashina.ru
Видео описание
Технология ручной рубки и сколько стоит баня из кедра, смотрите в следующем видеоролике:
Заключение
При строительстве бани на приусадебном участке необходимо в первую очередь определиться с местом строительства, потом выбрать проект бани, учитывающий все пожелания.
Можно обратиться в строительную компанию, сотрудники которой предложат типовые проекты для выбора, среди которых, скорее всего, уже найдется подходящий. Если такого не случится, можно заказать отдельный проект, согласно индивидуальным пожеланиям.
При планировании размера бани необходимо учитывать количество людей одновременно отдыхающих в ней. Если баня строится только для личного пользования, можно остановиться на эконом варианте с террасой, или небольшой комнатой отдыха внутри. Если же отдыхающих предполагается больше чем 2-3 человека, лучше сделать баню с мансардой, на втором этаже обустроив спальные места, и использовать баню как гостевой домик.
Как создать проект бани?
Чтобы создать проект бани, многие нанимают специалистов, которые, исходя из пожеланий хозяев и их потребностей, составят полноценный проект, учитывая при этом, из какого материала построена баня – каркасная она, кирпичная или построенная из блоков, а также отдельная или представляет собой конструкцию баня-дом. Но если в планы не входит тратиться на проектировщиков, тогда стоит составить план самостоятельно, максимально учитывая все нюансы.
Для этого нужно просто взять лист бумаги и нарисовать схематически все помещения, при этом не забыв указать все размеры и подписать, где и что будет расположено.
Если баня двухэтажная, то нарисовать стоит первый и второй этажи. Такой чертеж поможет с точностью рассчитать количество требуемых материалов для отделки и утепления, особенно если дом будет предназначен еще и для проживания зимой. Начертить такой план сможет абсолютно любой человек, главное – определиться, какие помещения нужны в бане.
Одноэтажная
В таком здании могут размещаться только основные помещения, а могут и дополнительные. Все зависит от метража. При минимальном помещении подойдет такой вариант, когда присутствует сауна, душевая, туалет. Кроме того, имеется маленький предбанник и небольшая комната отдыха. Этих помещений вполне хватит, чтобы устроить полноценный отдых для семьи и небольшой компании друзей.
Но это не единственный вариант. Можно улучшить комфорт и возможности для отдыха, если построить баню с террасой. На ней можно расположить обеденную зону с летней кухней или мебель для отдыха. Летом после банных процедур на такой террасе будет приятно выпить чаю, наслаждаясь летними пейзажами и воздухом.
Если террасу застеклить и утеплить, то отдыхать здесь можно и зимой. Даже на маленькой террасе можно расположить зону барбекю, установить печь или мангал.
Если оборудовать террасу слишком хлопотно, можно сделать веранду. В теплое время года ее для отдыха будет достаточно.
Двухэтажная
Постройка в два этажа дает больше простора для воплощения идей. Такая баня уже вполне может превратиться в гостевой дом. На первом этаже располагается банный комплекс с парилкой, моечной, предбанником и террасой, хозблок с различными инструментами и принадлежностями, а на втором этаже можно разместить любые помещения по своему усмотрению. Если гости часто приезжают и остаются ночевать, там может быть размещена гостиная со спальней, бильярдная, библиотека.
На втором этаже может быть и свободная планировка, а помещение можно разделить на зоны: для приготовления пищи, для отдыха, можно обустроить караоке-клуб. Все зависит от увлечения хозяев. При большой любви к физическим нагрузкам будет хорошим вариантом оборудовать мини-спортзал, поставить беговую дорожку и массажное кресло.
На пером этаже, например, может располагаться только сауна, душ и просторный бассейн, а уже на втором – комната для отдыха и чаепития и прочие помещения, необходимые для развлечений и досуга, хоть бильярдная, хоть библиотека. Чтобы было проще разрабатывать собственный проект, можно всегда рассмотреть готовые варианты, чтобы понимать, в каком направлении двигаться.
Какие бани строят чаще всего
Разумеется, наибольшей популярностью пользуются проекты бани с зоной отдыха, чаще всего это веранда, если банька строится в зимнем варианте, или с крытой террасой для летнего моциона. Отдых на свежем воздухе после прогрева в парном отделении всегда остается одним из самых важных этапов посещения баньки.
Как строить баню? Прежде всего, нужно подобрать материал, способ и масштабы постройки в соответствии с собственными представлениями о парилке и финансовых возможностях, а только после этого искать подходящий проект бани с наиболее удачной планировкой веранды и внутренних помещений.
Большую часть современных проектов бани с террасой, в зависимости от характера пользования и планируемых затрат, можно поделить на несколько категорий:
- Рубленные бревенчатые и брусовые баньки. Деревянная баня существует и используется в народе веками, и лучший материал для собственного проекта придумать сложно;
- Щитовые и каркасные бани, наиболее легкие и недорогие. Стоимость реализации проекта, однотипного по планировке с бревенчатой схемой, будет ниже на 20-25%;
- Универсальные двухэтажные проекты бани с террасой. В одной постройке парная объединяется с жилыми помещениями, например, гостевым отделением, или баньку встраивают в дачный домик.
К сведению! Самыми практичными считаются бани с верандой под одной крышей, фото.
Относительно недорогие в строительстве и одновременно очень удобные проекты для ведения дачных дел. В одном помещении с банькой оборудуется комната отдыха и летняя кухня, с камином и зоной барбекю. Баня с верандой, фото, строится одним комплексом, на одном фундаменте. Коробка собирается из оцилиндрованного бревна врубкой, благодаря чему постройка получается очень прочной и одновременно легкой. Поэтому сам фундамент по проекту можно сделать в упрощенном виде — на буронабивных или винтовых сваях.
К веранде пристраивается полноценная печь с кухонным набором и системой канализации, поэтому такая баня может служить и гостевым домиком и летним флигелем одновременно.
Особо стоит отметить крайне удачную планировку бани. По проекту комнату отдыха и веранду разделяет небольшой коридор, что значительно упрощает перемещение по зданию. Хорошим бонусом к просторной парилке и веранде можно считать небольшую террасу на входе в дом. По проекту она строится с солнечной стороны бани и прекрасно может использоваться для вечернего отдыха за чашкой чая.
Материалы для строительства
В основном бани строят из дерева. Однако с технической точки зрения здание можно сделать также каркасным, кирпичным, из керамических или пеноблоков и других легких бетонов. Выбор материала часто зависит от местности, т.к. если рядом есть производство кирпича, но нет лесопереработки, цена привозного материала может быть неоправданно высока.
К внутренней отделке требования выше, она должна отвечать следующим условиям:
- быть экологичной;
- не изменять своих характеристик при высоких температурах и влажности;
- не выделять вредных веществ при нагревании / намокании;
- не вызывать раздражения / аллергических реакций при контакте с кожей;
- отделка парилки должна отличаться низкой теплоемкостью и теплопроводностью;
- полы не должны быть скользкими при намокании.
Дерево отвечает этим условиям по всем параметрам, поэтому во внутренней отделке доминирует в основном этот материал.
Баня из дерева
Во многих регионах лес остается самым доступным строительным материалом, это отчасти объясняет значительную популярность деревянных строений. Натуральные стены имеют дышащие свойства, им не требуется пароизоляция, это снижает требования к вентиляции. Здание может быть в виде сруба из тесаного либо строганого бревна, собрано из бруса либо заводских комплектов из оцилиндрованного бревна и профилированного бруса. К плюсам деревянной бани относятся:
- можно строить на любом типе фундамента;
- сборка сруба занимает всего нескольких дней;
- низкая теплопроводность и теплоемкость материала;
- дышащие свойства стен;
- высокая степень готовности после сборки стен;
- экономия на внутренней и наружной отделке;
- полная экологическая безопасность.
Баня из кирпича
Материал, часто применяющийся для строительства бань, долговечен, пожароустойчив, стабилен. Эти свойства определяют его популярность при строительстве общественных зданий. Теплопроводность кирпичной стены по сравнению с деревянной или каркасной, значительно выше. Для сохранения тепла внутри помещений, стены приходится делать толще. Такое здание будет более тяжелым, значит потребует сложного ленточного или плитного железобетонного фундамента. Характерные особенности:
- большая долговечность;
- требуется железобетонный фундамент;
- высокая цена строительных работ и материалов;
- обязательна внутренняя отделка;
- требуется дополнительная тепло- и пароизоляция в парилке;
- обязательная гидро- и пароизоляция в мойке;
Каркасная баня
Плюсы каркасной конструкции в ее легкости, быстровозводимости, доступности. Каркас позволяет создавать стены минимальной толщины, поэтому при одинаковых наружных габаритах можно получить больше пространства внутри. Низкая теплопроводность стен достигается применением энергоэффективного утеплителя — минеральной ваты.
Для каркасных конструкций характерны:
- низкая нагрузка на фундамент;
- высокая скорость строительства;
- низкая теплопроводность материала;
- необходима полная гидро- и пароизоляция;
- низкая степень готовности после сборки стен;
- требуется наружная и внутренняя отделка.
Тонкости проектирования
Составляя план-проект, нужно помнить о существенных деталях. Планировка разделяется на несколько площадей, варианты могут быть разные, но обычно всегда в наличии представлены следующие комнаты:
- парная;
- душевая;
- санузел.
При разработке схемы-чертежа бани 6х6 метров следует принимать во внимание такие детали:
- разрешается делать с любой части объекта;
- труба канализационная находится рядом со сливной ямой;
- парилка проектируется заметно больше, чем помывочная;
- бассейн нередко делается в комнате отдыха.
Площадь 6х6 метров распланировать под баню не представляет большой сложности. Обустраивается мойка в самой парилке; делается печь дровяная или электрическая. Из бруса сбиваются широкие деревянные полки, размеры которых не меньше пятидесяти сантиметров. Туалет должен находиться рядом с помывочной. Предбанник традиционно отводится под хозблок, в нем хранятся дрова и уголь, банные принадлежности, а также в нем можно и переодеться.
Комната отдыха – это место, где можно поужинать и посмотреть ТВ. Стены этого помещения обшиваются деревянной вагонкой, а также иногда используются листы нержавейки толщиной от 2–3 мм. Такая баня будет прекрасно держать оптимальную температуру, что позволит экономить кубометры дров или угля.
Особое внимание рекомендуется уделить тамбуру, в котором можно обустроить раздевалку. Одновременно это техническое помещение является своего рода теплоизолятором, который предохраняет выход прогретого в парной воздуха
Размер помещения 6х6 метра более чем достаточно, чтобы разместить в нем все важные элементы. Помещение для отдыха рационально обогревать с помощью печи, которая примыкает к этой комнате. В предбаннике обычно размещают все самое нужное для приятного времяпровождения – столы, стулья, кухонные шкафы, камин. Часто также присутствует кухня с холодильником, газовой плитой и СВЧ.
Во время разработки проекта важно отталкиваться от количества людей, которые будут обычно находиться в помещении. Для формата 6х6 метра можно рассчитывать на 8–10 персон
Базовая цифра берется таким образом: один человек может занимать полезного пространства порядка 1,15 квадратного метра. Зная данный коэффициент, несложно рассчитать проект и рациональное расположение полезных площадей различных помещений.
Нельзя не упомянуть о помещении, важность которого сложно переоценить – это моечная. Обычно вода нагревается с использованием водонагревателя, который плотно контактирует с печкой
В моечной также часто размещают душевую кабину.
Факторы, которые влияют на планировку помещений бани, являются следующими:
- размер печи и ее функциональные особенности;
- пространство между печкой и предметами в комнате;
- общее количество отдыхающих;
- количество мебели и оборудования;
- размеры дверей и в какую сторону они открываются;
- параметры деревянных полок.
Двухэтажные
Баню также можно сделать в два этажа. Ее крыша может быть любая. Нередко делают подобные объекты с крышами в виде терема или вальмовыми, которые смотрятся на участке вполне оригинально. На втором этаже делаются комнаты для ночлега, а также там можно поместить террасу.
Одноэтажные
Наличие веранды – это важный момент в банном хозяйстве. Веранда может быть местом, где хорошо собираться отдыхающим в теплое или даже холодное время года. Стены террасы можно утеплить, в оконные проемы поставить двойные стеклопакеты. Терраса в летнее время на первом этаже может эффективно защищать от дождя.
С мансардой
Второй этаж можно сделать в виде мансарды. Своими руками такое сооружение возвести несложно. Мансарда – это фактически чердак, который приспособлен для полезных нужд.
Нюансы строительства
Если решено не привлекать в помощь профессионалов, а делать все исключительно своими руками, следует тщательно подготовиться к этому процессу и прислушаться к полезным советам.
Кирпичная баня должна иметь прочный фундамент. Поэтому чаще выбирают обустройство ленточного фундамента, иногда столбчатого или свайного. Но при этом обязательно производить монолитную железобетонную обвязку. А далее после проведения гидроизоляции производится кладка стен из кирпича.
Если в качестве материала выбраны бревна, сразу стоит иметь в виду, что построить одному баню не получится. Бревна достаточно тяжелые, а потому потребуется хотя бы один помощник. Бревна прежде следует подготовить – разметить все соединения, а затем вырезать их удобным способом. Чаще применяются пазы в виде полукруга.
Если стыки между деталями недостаточно хорошо прилегают друг к другу, рекомендуется использовать такой природный утеплитель, как пакля или мох. Если детали подогнаны точно, подойдет лента из войлока или джута.
При возведении бани из бруса нужно учесть очень важный момент. Если брус не высушен качественно, усадка может происходить очень долго, вплоть до 3-5 лет. Поэтому перед строительством он должен быть тщательно высушен. Тогда утепление и отделку можно производить сразу же, не выжидая даже нескольких месяцев.
При строительстве бани из блоков их скрепляют специальным клеем. Если использовать обычный бетонный раствор, придется дополнительно утеплять баню. Так что сэкономить на этом в любом случае не удастся. При возведении стен через ряд необходимо укладывать сетку из металла (например: 1,3,5,7 или 2,4,6,8).





![Проекты бань: 60+ лучших идей для строительства [2019]](https://coposic.ru/wp-content/uploads/9/4/7/9471a802c5dcc6c7259db01bf5f81791.jpeg)

















![Проекты бань: 60+ лучших идей для строительства [2019]](https://coposic.ru/wp-content/uploads/1/d/b/1dbb4b1d9b689b92d465e9ab4c174f35.jpeg)



















































