Проекты домов 6 на 8
Материал: По желанию
Материал: Пеноблок / Газобетон
Материал: По желанию
Материал: По желанию
Материал: По желанию
Материал: Кирпич, Дерево
Материал: Каркас
Материал: Пеноблок / Газобетон
Материал: По желанию
Материал: Кирпич, Пеноблок / Газобетон
Материал: Пеноблок / Газобетон
Материал: Пеноблок / Газобетон
Проекты домов с габаритными размерами 6 на 8 метров (6х8 м) широко распространены в условиях плотной городской застройки . Проекты маленьких домов с габаритными размерами 6 на 8 метров очень востребованы, за счет их малой площади и, как следствие, низкой стоимости строительства дома. Такие маленькие городские коттеджи и дачные загородные дома с габаритными размерами 6 на 8 метров (6х8 м) размещаются на маленьких или узких участках в условиях ограниченных земельных ресурсов и имеют свою индивидуальную планировку. Несмотря на маленькую площадь, проекты домов с габаритными размерами 6х8 м (6 на 8 метров) являются полноценными проектами и содержат в плане все необходимые помещения. Дом с габаритными размерами 6 на 8 метров может быть выполнен из различных материалов и по любой технологии строительства, а так же, иметь мансардный этаж или гараж.
Варианты использования внутреннего пространства
Планировка дома 6х8 м с мансардой может быть разной. Чаще всего на первом этаже хозяева делают одну компактную спальню для взрослых, общую гостиную, кухню и туалет, на втором мансардном этаже размещают два спальни и один небольшой холл между ними.
При наличии одного ребенка можно выбрать второй вариант планировки и сделать первый этаж – общим местом для времяпрепровождения, спальни сделать на втором этаже. Тогда гостиная получится просторнее. В ней целесообразно предусмотреть одно спальное место для оставшихся на ночь родственников или друзей. На следующем фото видно, как это все можно организовать на деле.
Один из вариантов планировки внутреннего пространства дома 6 на 8 метровИсточник drevolog.ru
Если выделенный бюджет позволяет, можно брать за основу типовой проект дома и уже на месте договариваться со строителями о возведении балкона на мансардном этаже или эркера в гостиной. Они подарят пару лишних квадратных метров, которые помогут потом решить какие-то проблемы с планированием внутреннего пространства дома. Можно потом, поднакопив денег, пристраивать к нему закрытую веранду или открытую террасу, а также гараж.
Видео описание
В видео показан один из вариантов, как можно организовать мансардное помещение под детскую комнату:
https://youtube.com/watch?v=OzhZY825II8
Обобщение по теме
Дом, размерами 6 на 8, относится к разряду экономного жилья. Его строительство выбирают люди со средним достатком. Такой проект лучше всего подходит владельцам небольших земельных участков. Существует огромное количество типовых проектов. Наличие мансарды позволяет значительно расширить функционал и перенести спальни с первого этажа на второй. Тем самым увеличивается площадь для общего пространства.
Одноэтажный дом для дачи не нужно сомневаться
Не стоит бояться, заказывая строительство одноэтажного дома, что в нём не хватит места для всех важных помещений. Несмотря на небольшую квадратуру, такое строение позволит не только организовать отдых в процессе садово-огородных работ, но и даст возможность вписать в планировку кладовую или помещение для хранения сезонного оборудования и инструментов.
В одноэтажном дачном доме 6х8 есть полноценное чердачное помещение, которое можно использовать для размещения овощных и фруктовых консервов, инструментов для обработки участка и т. д. Готовые проекты одноэтажных домов 6х8 метров – отличный выход, среди планировок можно выбрать подходящую, каждый вариант предполагает использование архитектурных элементов, расширяющих полезную площадь дома и придающих ему индивидуальность.
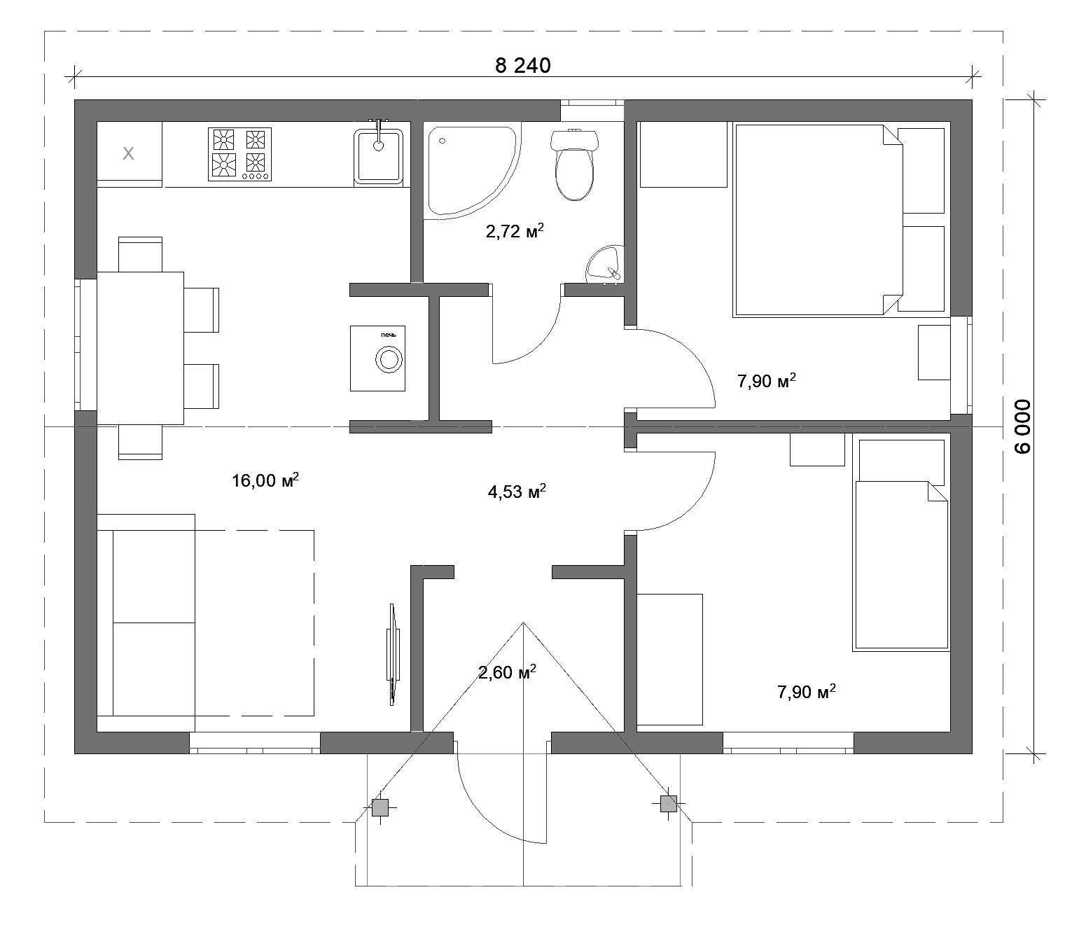
Проект представляет собой одноэтажный дом размером 6х8 метров. Общая полезная площадь – 48 кв. м. Часто такое строение используют для сезонного проживания (в летний период). На одном этаже удачно разместились технические и жилые помещения: санузел, тамбур, кухня-гостиная и 2 комнаты (каждая по 12 кв. м.). Комнаты можно использовать под спальню или кладовую для хранения садового инвентаря.

- Доставка 30км от Москвы или Санкт-Петербурга;
- Сборка дома у вас на участке;
- Комплектация дома:
Материал капитальных стен и перегородок:
- Капитальные стены дома — брус профилированный, массив хвойных пород, («прямой»/«закругленный»), брус естественной влажности.
- Высота сруба —18 венцов (2.4м), без учета венцов основания.
- Перегородки первого этажа — брус профилированный, массив хвойных пород,
сечением 90х140мм, брус
естественной влажности. - Венцы сруба собираются на металлические нагели (гвоздь 200мм.)
- Между венцами капитальных стен прокладывается межвенцовый льно-джутовый утеплитель.
- Рубка углов сруба выполняется в «теплый угол «.
Силовые конструкции:
- Основание сруба выполняется из бруса 150х150мм в два ряда.
- Лаги пола выполняются из бруса 40х150мм, шаг — 600мм.
- Стропильная система выполняется из бруска 40х100мм. Шаг ферм (стропил) — 1000мм.
- Черновой пол выполняется из обрезной доски 20-25мм.
Весь материал силовых конструкций естественной влажности!
Теплоизоляция:
- Пол дома утепляется рулонной минеральной ватой, толщиной – 100мм.
- Потолок дома утепляется
рулонной минеральной ватой, толщиной – 100мм
. - «Технические зазоры на усадку» в оконных и дверных проемах, утепляются льно-
джутовым уплотнителем.
Внутренняя отделка дома:
Потолок первого этажа подшивается евровагонкой хвойных пород, камерной сушки
- Для внутренней отделки используются финишные гвозди.
- Сруб дома и брусовые перегородки изнутри не отделываются.
- Оконные и дверные проемы отделываются наличником.
Пол первого этажа — половая (шпунтованная) доска строганная «шпунт», толщиной 36мм, камерной сушки
, полы не шлифуются, не циклюются.
- Углы комнат первого и второго этажа отделываются фигурным плинтусом хвойных пород.
Наружная отделка дома:
- Стены сруба снаружи не отделываются.
- Фронтоны обиваются евровагонкой
- Углы дома отделываютсяевровагонкой
хвойных пород, камерной сушки. Софиты, карнизы подшиваются евровагонкой
хвойных пород, камерной сушки(шириной в 4 вагонки).
Отделка оконных и дверных проемов
:
- Окна деревянные, двойного остекления, комплектуются фурнитурой, устанавливаются на петли.
- Двери:- Входная дверь: металлическая, китайского производства, средней ценовой категории.- Межкомнатные: деревянные (филенчатые) устанавливаются на петли, фурнитурой не комплектуются.
- Во все оконные и дверные проемы устанавливаются обсадные бруски «ройки».
Отделка террасы
, если проект ее предусматривает
:
Потолок подшивается евровагонкой
хвойных пород, камерной сушки- На пол стелется половая доска строганная «шпунт», толщиной 36мм, камерной сушки
, монтируется на гвозди, полы не шлифуются, не циклюются, полы монтируются с зазором 0,5см, через каждые две доски. - Перила — простроганный брусок 40х100мм.
- Балясины — точеные
, шаг 15см. - Опорные столбы из профилированного бруса 90х140мм с компенсаторами усадки.
Кровельный материал:
- Битумные волнистые листы «Ондулин», цвет выбирается заказчиком – красный, коричневый, зеленый.
- Обрешетка крыши не сплошная, выполняется из обрезной доски 20-25мм.
- П
од кровлю укладывается гидроизоляция (ветрозащита) — «Isospan А», или равные по характеристикам аналоги.
Другое:
- В перекрытиях пола и потолка и прокладывается паро- гидроизоляционная мембраны — плёнка на основе высокотехнологичного полимерного волокна «Isospan А», «Isospan В»
или аналоги. - Во фронтоны устанавливаются вентиляционные решетки.
- Устанавливаются ступени у входа
.
Обустраивайте помещения и выбирайте дизайн
При подготовке планировки двухэтажного дома 6 на 8 нельзя не учитывать и будущее положение мебели в помещениях. Здесь вас тоже во многом выручит программа «Дизайн Интерьера 3D». В коллекции софта собрано около 50 предметов мебели, которые можно расставить по комнатам.

В каталогах собрано свыше 50 предметов мебели
При этом важно отметить, что размер каждого объекта можно вручную настроить, впрочем, как и дизайн. Поэтому каждый раз при использовании одного и того же элемента вы все равно сможете получать совершенно разные предметы интерьера

Каждый добавленный предмет можно настроить в редакторе
Проект небольшого дачного дома 6х8
Большинство людей предпочитают проводить свободное время на природе, заниматься садом или огородом, и наслаждаться тишиной. Однако для проживания необходимо возвести небольшой дом, который стал бы местом отдыха для семьи. Первым этапом такого строительства считается подбор проекта, и в этой статье будет предложена планировка дачного домика 6 на 8. Для сезонного и непостоянного проживания эти размеры считаются самыми лучшими.

проект дачного деревянного дома 6х8
Дом выполнен из дерева, поэтому он хорошо гармонирует с окружающей природой и прекрасно дополняет её. Вход в дом начинается с небольшого крыльца, также выполненного из дерева и увитого зелеными растениями. Дом начинается с холла (10,75 кв. м.), для обстановки которого потребуется использовать минимум мебели. Самое главное установить шкаф и повесить зеркало. Цветовое решение может быть совершенно любым, кроме очень темных оттенков. Отличным вариантом будет использование светло-зеленого цвета, он бы подчеркнул красоту дачного дома.
Первый этаж
План дома 5х5 имеет кухню (9,5 кв. м.). Нет никаких строгих ограничений по стилю, но рекомендуется не использовать темные тона. Для обстановки и зонирования кухни можно установить гарнитуру, круглый стол, стулья со спинками, на стенах развесить картины. Вместо простых обычных аксессуаров можно использовать живые настоящие цветы в кадках, горшках или вазах. Освещение в этой комнате поступает от двух небольших окон. В вечернее время свет поступает от светильников на стенах и люстры, расположенной на потолке.

План первого этажа дома 6 на 8 с оригинальным оформлением
Другим помещением является гостиная (19,5 кв. м.). Цветовое оформление должно быть светлое, чтобы создать атмосферу уюта и теплоты. Расставить минимум предметов: мягкую мебель, шкафы для хранения вещей, столик и технику. Пол можно оставить в естественном виде, предварительно покрыв его слоем защитного лака. Между гостиной, холлом и кухней не имеется дверей, лишь арки, что делает помещения более объемными.
На этом же этаже имеется сауна (3,25 кв. м.) и санузел 3,75 кв. м. в которые можно пройти из холла через коридор, площадью 2 кв. м.
Спальные комнаты на втором этаже
На втором этаже имеется 2 спальни. Первая комната (19,5 кв. м.) ничем не отличается от второй спальни. В комнате есть большие окна. Именно благодаря этому в дневное время здесь наиболее хорошее освещение. Это место можно использовать даже в качестве рабочего кабинета, если вдруг возникнет такая необходимость. Для оформления этого помещения нужно использовать кровать, письменный стол, шкаф.

План второго этажа дома 6 на 8 с оригинальным оформлением
Вторая спальная комната (19,5 кв. м.) имеет точно такую же планировку, как и первая. Войти в эти комнаты можно из холла на втором этаже. Также из холла можно выйти на балкон (6,5 кв. м.). На балкон можно поставить живые цветы и красиво оформить перегородку.
2-этажный дом
Одноэтажные дома 6х8 – главные особенности
На сегодняшний день дома 6х8 одноэтажного типа приобретают все большую популярность, что объясняется максимальным использованием полезной площади при минимальных финансовых затратах. Отличие одноэтажных строений заключается в планировке помещений, расположении комнат жилого и хозяйственного типа, при этом концепция остается неизменной – комфорт и удобство на небольшой площади.

Одноэтажный дом 6 на 8 с террасойИсточник giropark.ru
Для строительства используются такие материалы, как газобетон или кирпич – для несущих стен, и деревянный брус – для перекрытия
Перед выполнением работ важно ознакомиться с некоторыми рекомендациями, которые помогут сделать жилище максимально функциональным и уютным:
- Жилые окна преимущественно располагать на солнечной стороне;
- Кухня и хозяйственные помещения могут быть глухими, окруженные жилыми комнатами;
- Толщина несущих стен должна быть в пределах 20-30 см, не более;
- Спальню лучше располагать на западной стороне, чтобы утром избежать преждевременное пробуждение от солнечного света;
- межкомнатные перегородки делать толщиной 9-12 см, лучше – из гипсокартона.
Несмотря на то, что планировка дома может быть любой, дом 6 на 8 одноэтажный включает в себя следующие помещения:
- кухня;
- коридор с тамбуром;
- хозяйственное помещение, с небольшой площадью;
- санузел совмещенный или раздельный;
- 1-2 спальни, с площадью примерно 15 м².
Преимущества таких конструкций заключаются в сравнительно недорогой стоимости и проведении работ по ремонту и отделке.

Планировка дома с раздельными туалетом и ваннойИсточник netprikols.appspot.com
Дом с мансардой
Проект дома 6 на 8 с мансардным этажом позволяет снизить расходы на строительство помещения, достигнуть долговечности эксплуатации постройки, создать неповторимый и уникальный интерьер внутренних помещений. Чердачное помещение существенно увеличивает в доме жилую площадь. Такие дома с мансардой выглядят более интересно и привлекательно, их внешний вид гораздо выразительнее, чем у домов, имеющих обыкновенный чердак.
Крыши мансард могут быть выполнены разной формы: наклонной, треугольной, ломаной, симметричной либо несимметричной. При этом расположены они могут быть по всей ширине дома либо же по одной его стороне.
Среди достоинств мансардных этажей можно выделить:
- Увеличение полезной площади дома практически в два раза.
- Отсутствие дополнительных затрат на сооружение фундамента и стен.
Поклонники активного отдыха в мансарде могут оборудовать бильярдную, тренажерный зал и т. д. Для творческих натур это отличное место для создания мастерской (столярной, художественной, скульптурной…), размещения кабинета или библиотеки. Практичные владельцы чаще всего данную площадь используют для обустройства детской, гостевой или спальной комнаты.

Видео: деревянный дом из бруса с мансардным этажом
Прослужит такая усадьба по времени в два раза меньше дома из кирпича, при этом придется чаще делать капитальный ремонт. Чтобы нивелировать перечисленные недостатки, нужно для строительства дома приобретать качественную древесину, изготовленную из ценных пород деревьев. На сегодняшний день такая покупка способна обойтись в кругленькую сумму. Лучшим материалом для возведения деревянного дома считается клееный брус. Но его стоимость ненамного отличается от стоимости кирпича. Поэтому, если есть желание действительно сэкономить, придется присмотреться к каркасным технологиям.
Дом с мансардой из клееного бруса.
Проекты в стиле минимализм
Многие современные жители стремятся окружить себя только функциональными предметами, отказываясь от излишеств. Все это характерно стилю минимализм. Совсем неудивительно, что при создании проекта одноэтажного дома 6х8 с отличной планировкой они также отдают предпочтение этому стилю.

При возведении жилого здания в стиле минимализм все усилия направляются на повышение его функционала.
Проекты домов, возводимых в стиле минимализм, сопровождаются отличительными особенностями:
- стремлением к простоте;
- использованием натуральных материалов;
- распределением световых акцентов;
- гармоничным сочетанием цветовых решений;
- использованием правильных пропорций и четких линий.

Крыша в домах, сооруженных в стиле минимализм, плоская. Такая же особенность крыши характерна стилю хай-тек. На такой плоской крыше также можно организовать террасу, создать оригинальную зону для отдыха.

Дома в стиле минимализм прекрасно смотрятся на любых ландшафтных пространствах. Для оформления фасада используются спокойные цветовые оттенки, яркие цвета исключаются.
Рекомендуется использовать два основных контрастных цвета, а для того чтобы расставить акценты, рекомендуется использовать еще два дополнительных цветовых оттенка.
Конструкции таких домов выделяются среди всех остальных объемными «геометрическими» решениями, отдельные части дома сооружаются в виде параллелепипеда, куба, трапециевидных или шарообразных секций. Четко прослеживается монолитность конструкции.

Стиль минимализм приветствует возведение именно одноэтажных зданий, поскольку проекты небольших жилых сооружений сопровождаются снижением затрат на инженерные коммуникации.

Дома в стиле минимализм возводятся из пеноблоков или газобетонных блоков. Однако могут использоваться и каркасные конструкции со стальной основой.
Для фасадной отделки применяют:
- камень (природный или декоративный);
- декоративную штукатурку;
- фасадную доску;
- композитные панели;
- клинкерную плитку.
Проект жилого строения в стиле минимализм имеет много общего с домом, выполненным в стиле хай-тек. Однако в качестве основных отличительных особенностей выступает использование материалов для фасадной отделки здания. Дизайн минимализма менее категоричен, чем хай-тек.

Внутренняя планировка дома в стиле минимализм также отличается достаточным простором, который выражается не в огромной площади комнат, а в их наполнении только самыми необходимыми функциональными предметами интерьера.

При проведении ремонта многоуровневые потолки обязательно дополняют точечными светильниками, чтобы обеспечить успешное зонирование пространства. Стены делают монохромными, хотя при желании можно выделить отдельные стены при помощи деревянных панелей или клинкерной плитки.

Гостиная объединяется с кухонным пространством, учитывая то, что общие размеры дома 6х8 не позволяют делать отдельно просторными кухню, столовую и гостиную.

Итак, проект одноэтажного дома 6 на 8 доверяют профессионалам, а интересные планировки на фото, проекты под особенности местности можно почерпнуть из данной статьи.
Материалы
Выбор материала из, которого будет построено здание, не менее важный вопрос, чем сама планировка дома 6 на 8. Ведь у каждого компонента есть свои плюсы, а поэтому сделать окончательный выбор не так уж и легко.

Для этого нужно познакомиться с материалами поближе, чтобы понять, что лучше всего подойдёт в данном конкретном случае:
Кирпич
Прочный и долговечный компонент. Хорошая шумоизоляция, высокие показатели пожаробезопасности, устойчивость к холодной температуре.

Специальные блоки для строительных работ
Более дешёвый вариант. Основное достоинство – это замечательные теплоизоляционные свойства, благодаря которым в помещении будет образовываться хорошая атмосфера и уютный внутренний климат.

Деревянные брусья
Очень распространённый компонент, который обладает рядом замечательных преимуществ. Кроме того данный материал очень экологичен и экономичен.


Деревянный каркас
Основные преимущества – лёгкая конструкция, небольшие финансовые затраты и быстрая монтажная работа, которая позволяет экономить на фундаментной основе.

Здания подобного плана не подвержены усадке, а их возведение можно начать в любое время года (даже зимой).

Чтобы окончательно разобраться и выбрать свой вариант, можно просмотреть фото дома 6 на 8, коих в интернете огромное количество.









Проекты домов из бруса 6 х 6 с мансардой: чертежи и внутренняя планировка
Когда встает вопрос о планировке дома с площадью 6 на 6, следует учитывать, для каких целей он строится. Если это домик для летнего загородного отдыха, то основную часть дома отводят для комнат жилого назначения, а для отдыха оставляют минимальное количество места. Как правило, зону отдыха в дачных домах обустраивают на террасе или рядом с домом на специальной площадке.
Правильное расположение комнат с террасой для отдыхаИсточник Skpomestie.ru
А вот если дом предназначен для проживания в нем круглый год, то площадь для жилых комнат остается небольшая. Ведь нужно место для общих помещений, таких как кладовая или гардеробная, которые помогут содержать дом в чистоте и порядке.
Рациональное расположение комнат с площадью для технического помещения или гардеробнойИсточник Domostroev.com
При планировании двухэтажного дома с такой площадью есть один существенный недостаток. Места для лестницы на второй этаж или мансарду остается очень мало. Как итог – она будет очень крутой, что значительно затруднит по ней подъем пожилых людей и детей.
Для одноэтажного дома
Одноэтажный дом площадью 6х6 имеет не так много вариантов планировки, как двухэтажные дома. Ведь на одной площади необходимо расположить все необходимые помещения и разделить их тонкими перегородками.
Если в доме будет проживать семья из двух человек, то можно сделать просторную кухню, спальню и санузел. Тогда каждое из помещений будет иметь достаточную площадь для комфортного проживания.
Планировка дома для семьи из двух человекИсточник Ooo-skp.ru
Когда строительство планирует семья с ребенком, то необходимо будет оборудовать детскую комнату. Для нее следует отнимать площадь от кухни и родительской спальни.
Планировка дома площадью 6х6 с двумя изолированными комнатами для родителей и ребенкаИсточник Dobrodom75.ru
Не стоит забывать и об обогреве дома. При планировании одноэтажного проекта предусматривается установка печи посередине дома. Такое расположение позволит одинаково обогревать все помещения, а так же разделит кухню и помещения для отдыха.
Для двухэтажного дома
Если предусматривается планировка дома 6х6 с мансардой, то жилая площадь будет уже не 36 кв.м, а 40-44 кв.м. При выборе крыши стоит заранее определиться с количеством спален на чердаке. Если будет одна большая спальня, то крышу можно сделать двухскатную.
Правильное расположение комнат в доме с мансардой и одной комнатойИсточник Daromdoma.ru
А когда в плане указывается две или три небольших комнаты, то стоит остановить выбор на вальмовой крыше. Под такой крышей можно сделать дополнительные помещения, например, гардеробную.
Расположение комнат на первом и втором этаже с отведением места для гардеробнойИсточник Domikbani.ru
На первом этаже здания располагаются кухня, гостиная, санузел и прихожая. А так же уделяется место и для лестницы. А в мансарде уже обустраиваются спальные комнаты.
Планировка такого дома имеет значительные преимущества. Спальные комнаты закрыты от посторонних людей, так как располагаются этажом выше. К тому же расширение жилой площади за счет строительства мансарды позволяет поставить дом для небольшой семьи в ограниченном пространстве.
Чтобы получить дополнительное пространство для отдыха, то следует на втором этаже сделать небольшой балкон или лоджию. Там можно поставить пару кресел и стол, и таким образом получить дополнительное помещение.
Рациональное расположение комнат дома с мансардой и отведением места для оборудования балконаИсточник Banivsem.ru
Специалисты рекомендуют проводить строительство домов такой площади именно с мансардой. Тогда само строение будет выглядеть пропорциональным, а на несущую конструкцию не будет создаваться большая нагрузка, а это защитит от сильной усадки.
При планировании места установки лестницы стоит помнить, что ее минимальная ширина составляет 1 метр. Тогда по ней можно будет безопасно передвигаться и избежать травм.
Для санузла отводится небольшое помещение, в нем лучше располагать не ванную, а душевую кабину: тогда места понадобится меньше.
Рациональная планировка санузла на первом этаже дома с мансардойИсточник Autogear.ru
Если один из членов семьи имеет надомную работу, то на первом этаже можно расположить изолированный кабинет в дальнем углу дома.
Особенности компактного жилья
Реализация проекта дачного дома 6х8 с мансардой позволяет получить очень компактное жилье, внутри которого можно обустроить пространство, пригодное для проживания семьи, состоящей из четырех человек. При грамотно выполненной планировке в нем можно разместить все необходимые функциональные зоны, все, что может понадобиться человеку для комфортного проживания.
По размерам такой теплый дом можно сравнить с типовой городской квартирой, но наличие мансарды, подвального помещения, пристроенной веранды позволит более удобно расположиться и выделить свободное помещение практически каждому члену семьи. При оплате налогов за недвижимость, площадь мансарды не учитывается. Она – чердачное помещение, жилым по нормам не считается. Для домика небольших размеров нет необходимости возводить большой фундамент. На этом можно сильно экономить. Кроме этого, использование современных материалов и технологий строительства позволяет возводить загородное жилье в максимально короткие сроки.
Небольшой дом для проживания одной семьиИсточник brus-bany.ru
Если заранее продумать угол наклона и немного поднять стены второго этажа, пользоваться мансардным этажом будет гораздо удобнее
Выбирая для жилья дом 6 на 8 с мансардой, важно помнить о том, что второй этаж не будет полноценным, Уровень теплоотдачи у него высок. Из-за этого придется очень тщательно производить теплоизоляцию крыши и стен
Важно тщательно продумать и смонтировать систему отопления. Мансарду нельзя будет обставить привычной мебелью: для интерьерного наполнения подойдут только невысокие предметы, размеры которых способны будут вписаться в чердачное помещение.
Как увеличить площадь маленького дома
Дефицит полезной площади в маленьком доме заставляет идти на некоторые хитрости при его планировке. Существует несколько способов использовать пространство более рационально. Наиболее действенный метод, это формирование многофункциональных помещений. Кухня совмещается со столовой, кабинет со спальней или с гостиной, а гостиная с детской.
Резервы для лишних сантиметров в маленьком доме, 4 полезных совета:
- Закрытое крыльцо вместо прихожей;
- Минимум перегородок;
- Двери устанавливаются не распашные, для открывания которых нужно радиусное пространство, а раздвижные;
- Компактная мебель, по возможности встроенная, с большими зеркалами и стеклянными витражами.
Не нужно стремиться уместить на имеющейся площади помещения разного назначения. Учитывая, что в доме 6 на 6 будет проживать небольшая семья, рационально распланировать его по принципу квартиры-студии, в которой соединяются кухня, столовая, гостиная и прочие комнаты. Большое помещение зонируется стеллажами, ширмами, цветом или различной отделкой на стенах.
В случаях, когда необходимо создать изолированное пространство (например, для рабочего кабинета или спальни), для него выделяется небольшая комната в дальнем углу дома.
Видеообзор одноэтажного дома:
Плюсы выбора типового проекта
Проект дома с мансардой можно сделать самому или заказать специалистам. Но если желание сэкономить, стоит выбрать типовой проект. Если он принадлежит компании, которая потом будет осуществлять строительство жилья, он обойдется совершенно бесплатно. Специализированные фирмы способны предложить большое количество готовых вариантов возведения домов 6 на 8, выбрать среди них что-то подходящее для себя не составит особого труда. В любые чертежи можно вносить коррективы, специалисты учтут их и изменят уже готовую документацию с учетом существующих строительных норм.

План-проект дома 6 на 8 с мансардой и с закрытым крыльцомИсточник pinterest.ie
В подобном проекте, кроме возможного расположения комнат, предусмотрены все необходимые коммуникации, показано и отмечено расположение канализации, электроснабжения, водопровода и отопления. К плану приложена сметная документация. В ней отображен объем необходимых строительных материалов в нужном количестве и в нужном варианте. Треть всего бюджета уходит на возведение стен. Именно здесь можно значительно экономить или значительно увеличивать итоговую сумму. Правильный выбор помогает оптимизировать расходы на строительство собственного жилья.
Проект дома с инженерными коммуникациямиИсточник belarusinfo.by
Где сделать лестницу на второй этаж
На установку лестницы отводится 1,5 м2 на первом этаже и столько же на втором. Это пустяк, учитывая, что со вторым этажом полезная площадь увеличивается ровно в два раза. Мансардный этаж прибавит несколько меньше квадратуры (27 м2), но и этого достаточно, чтобы пожертвовать 3 м2 на устройство лестничного марша.
Устанавливается лестница внутри дома в гостиной или прихожей. Если ее сделать в прихожей, то помещение должно быть достаточно просторным, и при этом следует предусмотреть его обогрев в зимнее время.
Такая планировка дома с лестницей удобна, если в гостиной выделено спальное место для кого-то из членов семьи. Когда гостиная не используется как спальня, вход на второй этаж лучше сделать из нее, и тогда, чтобы подняться в спальню, не нужно выходить из комнаты в прихожую. Также уместно сделать лестницу на веранде или террасе, сэкономив при этом площадь в жилых помещениях.
В дачных домах иногда устраивается наружная лестница, которая присоединяется к балкону. Но такое расположение создает некоторые неудобства пользования ею, особенно в ненастную погоду.
Лестница в доме 6 на 6 должна быть легкой и не занимать много места. Ее дизайн подчиняется внутреннему интерьеру, а материалом изготовления выбирается древесина.
Самой экономной в отношении места является винтовая лестница. Но следует учесть, что по ней сложно подниматься пожилым людям.
Двухэтажные
В таком доме можно будет проживать на постоянной основе. Если при проектировании дома грамотно расположить комнаты и конструктивные детали, то это позволит решить целый ряд пунктов и сэкономить полезную площадь.
Планировка двухэтажного дома 6 на 8 с мансардой
Двухэтажный дом 6х8 можно построить с балконом. Он может стать уютным местом для чаепития или отдыха. Достаточно неплохим станет планирование дома с несколькими комнатами. Среди них гардероб, просторный холл и веранда. Кухня может быть очень многофункциональной и связана с просторной столовой
Проект №1
Этот проект станет отличным решением для дома 6х8. Кухня здесь довольно большая и просторная. Сразу выйдя из нее, вы будете стоять напротив лестницы, а сама кухня расположена около гостиной.
Двухэтажный дом с мансардой
А вот санузел находится сразу около входа. Также санузел имеется и на крайнем этаже. На мансарде сосредоточены 3 спальни. Таким образом, дом подойдет для проживания большой семьи. А вот как выглядят типовые проекты домов из пеноблоков, и как правильно подобрать нужный, очень подробно изложено в данной статье.
Проект № 2
Для возведения компактного двухэтажного дома 6х8 можно воспользоваться этим проектом. Он предполагает наличие 4-5 комнат и санузел. Причем последний располагается только на первом этаже. Там же находится просторная кухня, совмещенная со столовой. При выходе из нее вы сразу попадаете в гостиную. Но при составлении проекта была предусмотрена закрытая веранда.
Так что по желанию хозяина можно переоборудовать ее под комнату для гостей, а из гостиной сделать рабочий кабинет. На верхнем этаже находятся две спальни. Они довольно просторные и вместительные.
На видео – двухэтажный дома 6 на 8 с мансардой и 5 комнат:
https://youtube.com/watch?v=rOYH5oeFDA0
Проект № 3
При проектировании двухэтажного дома 6х8 с мансардой открывают широкие возможности для творчества. Этот проект предполагает на первом этаже санузел, кухню и гостиную. А вот на мансарде сосредоточены 2-3 спальни.
Одна из них просторная, так что идеально подойдет для родителей, а вот 2 оставшиеся поменьше. Такой вариант отлично подойдет для семьи, у которых детки погодки. Зала довольно просторная и залитая солнечным светом. Достигается это за счет больших окон, которые выполняют не только свои прямые функции, но и служат отличным декором для фасада. А вот как можно построить пристройку к дому из пеноблоков, и как это сделать своими руками, очень подробно изложено в данной статье.
На видео – двухэтажный дома 6 на 8 с мансардой 3 комнатами:
Проект №4
Этот проект позволяет возвести двухэтажный дом с мансардой для комфортного проживания большой семьи. Верхний этаж отведен под 3 спальни. Все они достаточно вместительные и просторные. Также там есть санузел. Как только вы поднялись по лестнице, то попадаете в небольшой холл. Именно он и является неким узлом, который объединяет все комнаты.
А вот на нижнем этаже можно увидеть кухню-столовую, там же установлена барная стойка. Двигаясь прямо, расположена большая гостиная. А повернув на право, обнаружите санузле и небольшой кабинет.
Дом 6х8 с мансардой – это популярный вариант среди заказчиков проекта. И такой выбор не случайный, ведь в доме можно все так грамотно организовать, если поделить его на несколько зон. Таким образом, можно получить дом с кабинетом, спальнями и функциональной кухней. Все проектировочные работы лучше доверить профессионалам, но если вы обладаете достаточными знаниями, то сможете лучше всего отобразить на листе бумаги все свои задумки и пожелания. Также читайте материал про дом 6 на 6 и про планировку дома 8 на 8.

























































