Обзор помещений в конюшне
Вопреки укоренившемуся мнению, внутри конюшня не представляет собой одно большое строение с перегородками, делящими пространство на зоны. Помимо денников, где лошади будут отдыхать, конюшня должна включать в себя ряд помещений, предназначенных для технического обслуживания строения и создания должных условий для животных. Вот основные из них.
- Комната для проведения различных процедур. Это помещение лучше всего оборудовать и как помывочную. Тут животным должен оказывать помощь ветеринар, поэтому необходимо оборудовать помещение так, чтобы оно легко дезинфицировалось.
- Помещение для хранения средств безопасности. В нем должно храниться противопожарное оборудование и ряд других средств на случай возникновения ЧС.
- Помещение для хранения инвентаря. Здесь хранятся инструменты для чистки денников, а также различные лопаты, грабли, ведра и так далее.
- Помещение для хранения корма. Комната должна соответствовать условиям, позволяющим хранить корм в сухом виде. Необходимо установить в ней широкий проход (более 1 м). Помещение должно быть удобным и для распаривания каши.
- Помещение для хранения сена. Как и предыдущее, оно должно быть сухим. Сено легко возгорается, поэтому риск возникновения пожара в таком помещении должен быть сведен к минимуму.
- Помещение для хранения амуниции. Такое помещение должно быть просторным и максимально оборудованным для удобства конюхов. Там может находиться не только амуниция, но и необходимая мебель для отдыха.
Обустройство пола, крыши
Строительство нашего сарая еще не окончено. Но осталось немного. На нижние лаги прибиваем доску, плотно укладывая, ее друг к другу. А на верхние лаги на всю длину сарая, прибиваем обрешетку с шагом в 10 см, для укладки на нее кровельного материала.

На обрешетку выстилаем плотную бумажно-масляную изоляционную бумагу, она продается во всех строительных магазинах в рулонах и имеет небольшую цену. Крепим ее с помощью строительного степлера к обрешетке.

Поверх кладем кровельный материал, я использовал шифер 1,5 м х 3 м, делая выпуски с передней и задней стенки по 25 см и укладывая листы внахлест, для исключения протекания крыши.

Шифер крепится к лагам при помощи гвоздей, на которые стоит одеть резиновую прокладку, прежде чем вбивать в кровлю, затем зашиваем фронтоны.
№6. Готовый контейнерный сарай
Если сроки на возведение хозблока критически малы, то можно значительно упростить себе жизнь, купив готовый сарай. В основе таких конструкций металлический каркас, обшитый металлом со слоем утеплителя. В утеплителе прокладывают все необходимые коммуникации. Внешне такой сарай похож на контейнер, а его оснащение может сильно отличаться: от небольшого сарая-кладовки, то полноценного хозблока с туалетом и даже местом для отдыха и навесом для обустройства веранды. Наиболее функциональные контейнеры можно использовать как небольшой дачный домик, пока основной строится.
Как правило, подобные конструкции привозят на участок уже в собранном виде – остается только подключить все необходимые коммуникации. Это долговечные сооружения, обустройство которых требует минимум времени. Придется позаботиться только о фундаменте, но подойдет обычный столбчатый или простая бетонная плита. Стоят такие сараи недешево, выглядят не очень привлекательно, но за счет долговечности и прочности конструкцию можно будет продать, если в ней отпадет необходимость.
Схемы и чертежи сараев

Несмотря на то, что это сарай, сооружение считается капитальным, поэтому необходимо иметь чертеж, как основу для расчета материалов и, как основу для строительства. При составлении схемы необходимо учитывать ряд факторов, которые повлияют на конечный результат, в том числе и в плане экономии материалов и средств. В обязательном порядке необходимо учитывать действительные размеры строительных материалов, чтобы уменьшить количество отходов. Поэтому размеры сарая должны быть сопоставленными с размерами, как строительных, так и отделочных материалов.
Как правило, чертеж выполняется с учетом всех проекций, поскольку все фасады могут иметь какие-то различия. При этом необходимо указать все размеры, как всего сооружения, так и размеры проемов для окон и дверей, а также толщину стен. Если имеются какие-то конструктивные элементы, требующие особого внимания, то их изображают дополнительно, указывая на их технические особенности, указывая размеры более подробно.

В основном, сарай не отличается сложностью своей планировки, поэтому необходимо предусмотреть все перегородки, если необходимо разграничить помещение в зависимости от их назначения. В каждом помещении, в зависимости от назначения, следует предусмотреть хотя бы одно окно небольшого размера. Особенно окна необходимы в том случае, если в сарае планируется содержать животных. Доступ солнечного света благоприятно влияет на развитие животных и птицы.
Чертежи и схемы сараев
Сарай — капитальное сооружение, поэтому чертеж является базовой основой для как расчета материалов, так и для дальнейшего строительства
При составлении важно учитывать кроме своих пожеланий размеры блоков, листов, мерных изделий, чтобы при возведении оставалось как можно меньше обрезков и отходов
Чертеж нужно составить в нескольких проекциях, желательно всех 4 фасадов, если есть какие-либо различия. Указывают размеры здания по осям, высоту, габариты проемы, толщину стен. Обозначают раскладку основных конструктивных элементов и другие технические подробности. Можно воспользоваться схемой из интернета, а потом детально ее проработать.
Планировка может быть совсем простой. Если под одной крышей будут помещения различного назначения, их нужно разграничить перегородками. Желательно устроить хотя бы одно окно
Особенно это важно для выращивания животных, так как солнечный свет благоприятно влияет на их поведение
Примеры чертежей:


Как построить бытовку из профлиста: особенности строения
Возведение сарая из профлиста проводится довольно быстро и при этом позволяет получить надежный хозблок.
Работа по возведению выполняется следующим образом:
- Определение оптимальных размеров сарая, подготовка участка под него.
- Выкапывание котлована на 5 см больше с каждой стороны, чем размер сарая. Выкапывание в углах котлована ям с глубиной в 70 см.
- Засыпка песка, щебня, установка металлических стоек или квадратных труб. Заливка угловых частей бетоном (соотношение песка и цемента 3 к 1).
- Заливка фундамента (оставшейся не залитой площадки, которая будет одновременно и фундаментом, и полом).
- Монтаж каркаса под односкатную крышу: соответствующая обрезка под углом пары стоек, сварка их со вспомогательными профилями.
- Крепление профнастила к каркасу в качестве стен и потолка + отдельное изготовление стенки с дверным проемом и монтаж калитки из профлиста и профильной рамки.
Монтаж пола
Крепление лаг производят на брус, которым снабжена обвязка, или на второй венец. Расстояние между лагами определяет тем, насколько толстая доска. Чем больше значение толщины, тем больше делают шаг между лагами. «Двадцатку» укладывают с шагом в 30 см, а 30-миллиметровая доска монтируется с шагом в 40 см.

При монтаже пола плитами ОСП пропорции следующие:
- 1,6 см – шаг в 30-35 см;
- 1,8 см – монтаж с шагом в 40 см;
- 2,2 см – с шагом до 50 см.
Конструкция пола в утепленных сооружениях проводится по следующей схеме:
- Нижняя часть имеет обшивку из досок или плит ОСП.
- На обшивку накладывают слой гидроизоляции.
- Промежутки между лагами заполняют утепляющим материалом.
- Верхняя часть обшивается покрытием.

Построить добротный хозблок своими руками возможно, если следовать пошаговой инструкции. Наши рекомендации подскажут, как это сделать самому.
Монтаж крыши
Монтаж односкатной крыши для хозяйственного сооружения будет одним из самых простых решений. Здесь может быть два варианта:
- Изготовление одинаковых стоек со строго горизонтальной обвязкой верхней части. Формирование угла наклона проводится посредством передних или задних стоек, устанавливаемых дополнительно, которые снабжаются опорным брусом. Крепление стропил осуществляется одним концом к обвязке, другим — к опорному брусу.
- С помощью пар спереди и сзади на стойках, которые имеют фиксированные размеры. Обвязка сверху выполняется под нужным углом наклона. Крепление стропил проводят непосредственно с обвязкой.

Стропильные ноги крепятся к обвязке с помощью специального паза, которым снабжается брус обвязки. Можно использовать другой способ — крепление с помощью опорного бруска, который соединяется со стропилом и имеет опору на брусе обвязки.
При покрытии кровли профильным листом либо металлочерепицей поверх стропил проводят укладку специального гидроизоляционного материала — пленки. Когда в качестве кровельного материала применяют ондулин, шифер или битумную черепицу, гидроизоляционный материал прокладывают лишь в отапливаемых сараях.

Далее проводят работы по монтажу обрешетки кровли. Определяющие факторы для шага обрешетки — вид кровли и ее угол наклона. При покрытии ондулином и углах меньше 10 градусов делается сплошная обрешетка.
Выбор места для строительства сарая
Выбор места для строения полностью зависит от его предназначения. Подход к постройке должен быть удобным в любую погоду. Почва на месте строительства может быть полностью непригодной для выращивания растений.
Если участок расположен немного под уклоном, то ставить хозпостройку в низине нежелательно. Зимой там может быть много снега, а в другое время года там может скапливаться дождевая или талая вода. Если решение принято, и сарай будет располагаться там, то нужно для него соорудить высокий фундамент, предусмотреть водоотвод и гидроизоляцию. Это дополнительные хлопоты и расходы.
Не стоит возводить строение в том месте, где зимой наметает много снега. Попасть внутрь будет затруднительно, особенно если в нём будет находиться лопата для уборки снега. А весной, когда начнёт снег таять, нужно будет убирать его от строения из досок, чтобы влага не попала внутрь, не привела в негодность строительный материал или не подтопила строение.
Если вы не намерены использовать дорогие строительные материала для постройки сарая, а внешний вид дома и участка с парадного входа очень презентабельный, то каркасный сарай можно спрятать за домом.
Можно построить его в глубине сада или за высокими декоративными растениями. Сарай для угля иди дров лучше расположить ближе к дому, чтобы не приходилось далеко бегать.
Если в строении будет мастерская с шумным оборудованием, то его лучше строить подальше от жилья. Но здесь нужно учитывать подводку необходимых коммуникаций: отопления, водопровода и электричества
Важно ещё и естественное освещение, а не тень деревьев или других строений. Лучший вариант, это когда окна выходят на южную или восточную сторону
Постройку, в которой будут жить кролики, нужно расположить так, чтобы им ничего не мешало и не беспокоило. Это касается и другой живности.
В общем, нужно учесть все нюансы, а только потом приступать к разработке конструкции. Учитывать размеры предполагаемого сарая, его высоту и количество окон в нём, двери или ворота. Сделав подробные чертежи, можно будет посчитать количество требуемого материала и затраты на его покупку.
Материалы для постройки
Неважно, планируется ли строительство небольшого сарая на даче или просторный хозблок, выбор материала и технологии прежде всего зависит от целей использования. Из перечня ниже можно понять из чего построить сарай недорого:
Пеноблоки
Преимущества | Нюансы |
|
|
Кирпичи
Преимущества | Нюансы |
|
|
Плиты OSB
Преимущества | Нюансы |
|
Простой и недорогой вариант для дачи – деревянный сарайИсточник bankfs.ru
Деревянный каркас
Преимущества | Нюансы |
|
Металлический каркас
Преимущества | Нюансы |
|
Контейнерный хозблок
Затраты на постройку соломенного сарая минимальные. Зато по теплотехническим характеристикам он превосходит даже кирпичные хозблокиИсточник notperfect.ru
Что сначала?
Ориентируемся на месте, разговариваем с соседями. Цель – найти наилучшее место для сарая: чтобы был не очень далеко, но и не торчал перед глазами и укладывался в санитарные нормы по расстояниям до источников водоснабжения и др. подверженных загрязнению объектов (жилые дома, посадки сельхозкультур, особенно корнеплодов);
Вдруг по п. 1 ясности нет, строим сарай либо передвижной, либо времянку из дешевого бросового материала. Тем не менее, сарай на даче из горбыля или досок б/у возможно построить достаточно долговечным, недорого и несложно облагородить до придания ему вполне приглядного вида, см. далее;
Если с местом под сарай определились сразу, выбираем тип верхнего строения с учетом возможности обзаведения домашними животными;
Подбираем к «коробке» крышу;
Определяем тип фундамента;
Проектируем сарай с привязкой на местности
Последнее особо важно, т.к. надзорные органы с источниками загрязнений не церемонятся;
Сводим (подбиваем) смету на строительство и оформление;
Возможно, корректируем проект, если сарай в бюджет не вписывается;
Также, возможно, рассматриваем вариант самостроя с последующим узакониванием. Если сарай заведомо укладывается в СанПиНы (Санитарные Правила и Нормы), то так выйдет дешевле и проще, чем строить изначально по проекту;
Закупаем материалы, строим.
Если сарай заведомо укладывается в СанПиНы (Санитарные Правила и Нормы), то так выйдет дешевле и проще, чем строить изначально по проекту;
Закупаем материалы, строим.
Как быть с проектом?
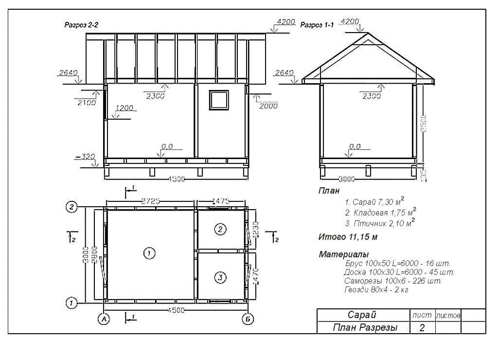
Сарай – легкое быстровозводимое не отапливаемое нежилое строение, из чего следуют важные облегчающие дело следствия. О них для строительства речь впереди, а пока нужно знать, что при оформлении/узаконивании наибольших придирок и сложностей следует ожидать по привязке на местности в соответствии с СанПиНами. Собственно проект сарая должен включать в себя листы с фасадами, план с разрезами, см. след 2 рис. и план-схему фундамента со спецификацией материалов на него, как на рис. с план-разрезами.

Лист фасадов из проекта сарая
Как правило, бесплатные проекты сараев из рунета утверждаются безо всякого и потом никто никогда не проверяет досконально, что там на самом деле построено. Похоже на проект, и ладно. Отклонения от проекта в строительстве допустимы, а в «мелкострое» для себя и без согласования можно обойтись. Но вот план-схему расположения на участке изучают очень внимательно, как и планы соседских участков и их согласия на строительство. Так что позаботьтесь собрать эти бумаги заранее, они действительны 3 года.

Лист план-разрезов из проекта сарая
Возможно, въедливый чинуша потребует еще лист с конструкцией каркаса, т.к. нежилое-то оно нежилое, но люди туда заходят. На такой случай для образца – чертежи на рис. Кстати, это совсем неплохая сарайка для 6-соточной дачи. На крайний случай там и спать можно, улегшись по диагонали.

Каркас мини-сарая для маленького участка
О временных сараях
Добротный деревянный сарай без фундамента весит до тонны; с односкатной крышей и если строить аккуратно, но не по-купечески, можно уложиться в полтонны. Передвигать его на катках по слегам, см. рис., подваживая ломом, можно вдвоем. Чтобы поднять и поставить на основание с помощью лямок (веревок), хватит 10-12 крепких мужиков. Хотя как знать, не обойдется ли последующее угощение для этой оравы дороже аренды автокрана…

Передвижение сарая на катках
К чему это, кроме того, что спервоначала строить можно где угодно? К тому, что в таком случае проект нужен не более, чем для собачьей будки, а для нее он не нужен вовсе. Если год простоит, то потом, на фундаменте, узаконят, лишь бы в СанПиНы вписывался.
Однако тут встает вопрос уже для себя: а как на фундамент ставить? Надо бы на анкеры посадить, но не разбирать же постройку, чтобы сквозь венец их протолкнуть? Есть способ, о нем см. далее.
№4. Каркасный сарай для дачи
Каркасная технология строительства – одна из наиболее популярных на сегодняшний день, она позволяет обойтись небольшими вложениями, да и построить такой сарай своими руками несложно. Технология заключается в создании крепкого, надежного каркаса из деревянного бруса или профтрубы. Сверху каркас обшивается любым листовым или пагонажным материалом и при необходимости утепляется изнутри.
По используемому для внешней обшивки материалу сараи бывают:
деревянные сараи с обшивкой из обрезной или необрезной доски (горбыля) считаются самыми простыми в реализации и самыми дешевыми конструкциями, правда, долговечность их невысока. Постройка начинается с возведения фундамента, затем монтируют опорную раму из деревянного бруса, крепят стойки стропила для обустройства кровли. Полученный каркас обшивают обычной доской или горбылем. Идеально подходит шпунтованный материал, так как позволяет избежать щелей. Некоторые прибегают к монтажу досок елочкой. Деревянные сараи можно использовать в любых целях, но если предусмотрена зимовка в них животных, то лучше на этапе строительства применить ветрозащитные пленки и утепляющий материал. Деревянный сарай – это дешево, просто и экологично. Минусы значительны: невысокая долговечность, подверженность гниению, воспламенению, появлению насекомых, необходимость постоянной защитной обработки для продления срока службы;
сараи, обшитые плитками ОСБ, показывают лучшие показатели по долговечности, ведь материал практически не гниет и не коробится. Основой служит деревянный каркас, но при его возведении стоит очень точно монтировать опорные стойки, чтобы шов между плитами ОСБ приходился точно на них. По стоимости плиты ОСБ обойдутся дороже досок, но хлопот в плане монтажа и обслуживания меньше. Тем не менее, краской такой сарай все же лучше покрыть не столько из эстетических соображений, сколько для обеспечения дополнительной зашиты;
металлический сарай – уже более надежное и долговечное сооружение. Каркас изготавливают из профильной трубы, некоторые дачники используют старые водопроводные трубы. Их бетонируют в грунте, фиксируют с помощью болтов или сварки вертикальные прогоны и крепят облицовку, в качестве которой подойдут листы профнастила. Металл придется периодически защищать от коррозии, тогда сарай простоит очень долго. Металлический хозблок выходит холодным, и если необходимо организовать в нем мастерскую или место содержания животных, лучше провести внутреннее утепление;
- поликарбонат традиционно используется для возведения теплиц, но применяют его при обустройстве сараев для закрытого выгула домашней птицы. Если сарай будет использоваться как мастерская или склад, прозрачные стены ему ни к чему, но за неимением других материалов и поликарбонат может сгодиться. Крепить листы материала можно на деревянный и металлический каркас, используются специальные саморезы с широкой шляпкой и уплотнительной шайбой;
шифер, оставшийся после замены кровли дома, можно также использовать для создания сарая. Плоские или волнистые листы лучше всего крепить на деревянный каркас. Так как размер листов большой, монтаж сильно ускоряется. Выглядят такие сараи не очень привлекательно, зато они максимально экономичны;
- сарай из опилкобетона возводится по монолитной технологии. Понадобится создать каркас и обшить его плитами ОСБ, получив опалубку. В нее заливают смесь цементного раствора и опилок. В итоге получаются крепкие стены с неплохим показателем теплоизоляции. В таком сарае можно обустроить мастерскую, склад или курятник;
поддоны, они же паллеты, можно использовать как альтернативу брусу при обустройстве каркаса сарая. Достать деревянные поддоны не составит труда: если не совсем бесплатно, то за минимальную плату. Поддоны выставляют на фундамент, стягивают между собой болтами, устанавливают стропила, а готовый каркас обшивают (обычно плитами ОСБ).
Как быстро и дешево построить сарай
Для возведения постройки понадобится совсем немного средств, если иметь полное представление о конечном результате. Если нужно сделать сарай для дачи, пошаговая инструкция поможет сэкономить.
Наиболее простой вариант, к тому же не требующий много времени, будет, предполагает использование каркасной конструкции. Основа может быть металлической или из дерева, а облицовка – из любого подходящего для этого материала. Сразу после того, как перекроете крышу, постройка будет готова.
Недорого построить хозблок можно из подручных материалов, которые за небольшую цену легко приобрести у соседей. Если при этом сделать сарай без фундамента, правильно рассчитав размеры и общую жесткость сооружения, можно дополнительно сократить издержки и избежать тяжелых бетонных работ.
Что сначала. Как быть с проектом
Постройка сарая, как и любое строительство, предполагает создание проекта. Процедура обустройства сарая несколько усложняется, если требуется сделать санузел иди душ. Нужно предусмотреть канализацию, водопровод, дополнительные двери и окна.
После того как определились с местом расположения и размерами, следует подумать, из чего сделать сарай. Если постройка рассчитывается на долгий срок, понадобится фундамент. Постоянную постройку лучше планировать из блоков или кирпича. Сарай из горбыля с крышей из старого шифера может быть только временной конструкцией.
Чертеж сарая понадобится максимально подробный. Дизайн долговременного помещения должен гармонировать с общим стилем и ландшафтом двора.

О временных сараях
При размышлении о том, из чего построить сарай, часто используют оставшийся после возведения дома материал.
Главное – сделать жесткий каркас конструкции. Для этого подойдет брус, а при наличии сварочного аппарата – трубы или уголок.
Если для стен используются неоднородные материалы, следует делать нахлест сверху вниз. Под крышей желательно проложить гидроизоляцию из полиэтиленовой пленки или толя.
Дверь можно приспособить б/у или сколотить самый простой вариант из досок и подвесить на внешние петли.
Выбор места для сарая
Особенности выбора:
- Деревянный сарай ставьте на возвышенности, чтобы конструкция была защищена от талых или дождевых вод.
- Красивые сараи можно расположить в любой части участка. Сооружения попроще лучше спрятать на заднем плане.
- Скат крыши нужно сделать так, чтобы сточные воды не заливались в помещение и не мешали ничему во дворе.
- Строительство сарая для подсобного хозяйства (утки, куры, животные) лучше начать в месте, где можно отгородить дополнительную территорию для выгула. Кроме того, нужно учитывать специфический запах.

Инструменты для работы
Материалы и инструменты, которые потребуются для того, чтобы построить сарай своими руками, зависят от выбранного типа конструкции.
Скорее всего понадобится:
- лопата;
- молоток;
- дрель;
- электролобзик или ножовка;
- угол;
- уровень;
- рулетка;
- отвес;
- шуруповерт или отвертка.
Если нужно делать фундамент из железобетона, то было бы неплохо иметь бетономешалку. Если правильно спланировать работу, то ее можно взять в аренду на полдня.
Фундамент
Любая строительная конструкция нуждается в надежном и прочном основании, способном выдержать ее вес.
Для обустройства сарая подходят основания столбчатого, монолитного, ленточного и свайно-винтового типа. Столбчатый фундамент подходит в большинстве случаев, поэтому специалисты рекомендуют отдавать предпочтение именно такой конструкции.
Столбчатый фундамент
Разметьте площадку для обустройства фундамента. В этом вам помогут любые подходящие колышки, шнур и рулетка.
Рулеткой замерьте стороны фигуры и ее диагонали. Длина элементов должна быть одинаковой.
Выройте по периметру размеченного участка, в углах, а также в точках пересечения внутренних перегородок ямы глубиной 500-700 мм (иногда глубже, в зависимости от уровня промерзания грунта) для установки столбов. Оптимальный шаг расположения столбов – 1,2-1,5 м.
Как сделать столбчатый фундамент
Обустройте опоры из асбестовых труб, заполненных арматурой и бетоном, либо кирпичных столбов – выбирайте на свое усмотрение.
Убедитесь в ровности установки столбов при помощи строительного уровня, засыпьте пространство вокруг опор в ямах песчано-гравийной смесью примерно на 150 мм высоты углубления, а оставшееся место залейте бетоном.
Создание фундамента из асбестовых трубСтолбчатый фундамент армированныйСтолбчатый фундамент армированный
Оставьте фундамент набирать прочность на несколько дней.
Перед засыпкой и бетонированием можете обработать опорные столбики специальной мастикой. Она поспособствует улучшению гидроизоляции основания и продлению срока его службы.
Фундамент для дровяника
В некоторых случаях при хранении дров устраивают фундамент из блоков, балок или свай. Это делается, чтобы обеспечить свободную циркуляцию воздуха, а также уменьшить вероятность подтопления при дождях или таянии снега.
Чаще всего фундамент заменяют вентилируемым настилом из досок. Чтобы выдержать вес от расположенной выше древесины, достигающий порой нескольких сотен килограммов, он должен быть достаточно прочным.
Для крепления каркаса к фундаменту применяют анкеры, держатели, уголки, скобы и кронштейны. Возможно 2 способа монтажа:
- Закладные крепежные детали устанавливают в процессе бетонирования или кладки, а потом к ним фиксируют стойки.
- Если фундамент смонтирован из блоков или бруса, каркас крепят по месту с помощью металлических анкеров или винтов.
Метизы используют оцинкованные или нержавеющие. При соединении дерева с бетоном необходима гидроизолирующая прокладка.
Инструменты и материалы для работы
Материал вы должны выбрать заранее по собственным предпочтениям. Однако, если вы новичок в этом деле, лучшим вариантом для вас будет каркасный деревянный сарай своими руками.

Рассмотрим, что необходимо для его возведения:
- В зависимости от наличия, может пригодиться станок по дереву. Если его нет, то можно обойтись вручную.
- Электролобзик.
- Пила циркулярная.
- Дрель.
- Пила цепная.
- Доски и бревна.
- ДВП.
- Рубероид.
- Крепежи.
- Розетки и выключатели.
- Клей ПВА строительный.
- Клеенчатый материал, либо пленка.

Все это обязательный набор, но при надобности могут пригодиться и другие инструменты, такие как молоток, наждачная бумага и т.д. Обязательно составьте чертежи сарая для большей точности.

Как построить сарай на даче своими руками
Эта постройка для дачи просто необходима. Она будет прекрасным местом для хранения инвентаря, в ней можно будет спрятаться от дождя, перекусить и немного отдохнуть. Минимальные её размеры для этих целей 2×2,5 м. Чтобы построить сарай, нужны деньги, силы и время. Если с этим вопросом определились, то нужно решать следующий. Где будет стоять постройка? По мнению специалистов, сарай всегда находится за домом, на втором плане. А если дома на даче не будет, то его место может занять сарай.
Рассмотрим подробнее (пошагово) как построить каркасный сарай с односкатной крышей из бруса и досок. Её размер будет зависеть от предназначения. Для строительства сарая из досок фундамент заливать не нужно.
Достаточно просто подготовить место, сняв слой плодородной почвы глубиной 30—50 см. В дальнейшем эта земля пригодится для устройства теплицы, поэтому её не нужно выбрасывать.
Строительство сарая занимает несколько дней. Работы ведутся в следующем порядке:
- С помощью колышков обозначается размер будущего строения.
- В углах нужно закопать столбы из деревянного бруса, на глубину не меньше 0,5 метра. Предварительно этот материал обрабатывается антисептиком, нижняя часть, которая будет в земле, оборачивается рубероидом. Так можно уберечь дерево от гниения на первые 10 лет.
- Если крыша сарая будет односкатной, то столбы, обозначающие заднюю стенку, должны быть короче на 20—30 см, или глубже закопаны, чем передние.
- Далее, предварительно заготовленные бруски, сечением 40×40 мм, крепятся к столбам. Для этого можно использовать гвозди или саморезы. Бруски крепятся в три ряда: сверху конструкции, снизу и посредине.
- Полученная обвязка обшивается досками, которые должны плотно прилегать друг к другу, чтобы между ними не было щелей. Места для окон и двери остаются не обшитыми.
- Для временной постройки материалом для крыши может быть шифер или профнастил. Чтобы качественно сделать крышу, нужна обвязка из бруса, которая и будет служить стропилами. Расстояние между брусками должно быть меньше ширины шифера или профнастила. Материал должен накладываться друг на друга с напуском 7—10 см.
- Далее, идёт установка заготовленных окон и дверей, а также настилается пол.
- Внутри сарая устанавливаются полки или стеллажи, необходимая мебель и другое имущество.
Как вы убедились, построить сарай с односкатной крышей из досок можно быстро. На участке подобное строение рекомендуется утеплять и устанавливать пароизоляцию.
Возведение сарая – этапы
Малая площадь тематической конструкции гарантирует ее возведение в кратчайшие сроки.

Главное – придерживаться определенной поэтапности:
- Выбор подходящих размеров;
- Выбор места для будущей конструкции;
- Составление проекта и разметка участка;
- Создание фундамента;
- Организация над фундаментом обвязки из брусков и лаг для каркаса-кладки и напольного настила;
- Крепление вертикальных опор-балок для продления каркаса или укладка первого ряда из профилированных брусков или кирпичей;
- Организация стропильной системы для крыши;
- Организация перекрытий, подкосов и обрешетки для монтажа кровельного материала;
- Кладка последующих рядов или обшивка балок готовыми древесностружечными плитами или типовыми ламелями;
- Внутренняя и внешняя обшивки при необходимости;
- Подвод коммуникаций при необходимости;
- Установка двери.


Также имеет смысл позаботиться о фасаде сарая, если он находится по соседству с жилой конструкцией. Дело в том, что оба здания должны быть выполнены в одном стиле.

Советы специалистов
Если сарай из дерева строится за 2—3 дня, то из кирпича или камня — значительно дольше. При строительстве нужно соблюдать нормы и правила начиная с закладки фундамента. Тогда такое строение будет служить вам и вашим детям долгое время.
Чтобы хранить садовый инвентарь на даче, можно купить сарай из пластика, а не задавать себе вопрос, как сделать сарай? Его продают в разобранном виде, а для его сборки потребуется всего 2—3 часа. Только пригодной такая конструкция будет лишь в летнее время.
В качестве утеплителя используется пенопласт или минеральная вата. Если обшивка будет из гипсокартона, то его нужно обработать антисептиком. Вместо гипсокартона можно использовать сайдинг, вагонку, доски или другой материал, на ваше усмотрение.
Для капитального строения сарая нужен бетонный пол. Если для крыши хозпостройки используется шифер, металлочерепица или профнастил, то их можно крепить непосредственно к стропилам. Это тот случай, если крышу вы не будете утеплять.
Сарай является необходимой постройкой. Капитальное строение нужно возводить из прочных материалов, а не из досок. Одним из таких материалов является пеноблок. Если нужно сэкономить, то выбирайте эконом-вариант. Главное — правильно выбрать для него место, сделать капитальную дорожку, украсить близлежащую территорию кустами и цветами.
Выбор фундамента
Площадь хозяйственного блока небольшая. Однако внутреннее содержание может оказывать большую нагрузку на фундамент, чего не видно на фото хозблока для дачи. Поэтому в качестве несущей подложки лучше выбирать:
- Столбчатый фундамент из красного кирпича, шлакоблока или пенобетона;
- Ленточный цементно-арматурный фундамент.

Причем столбы или ленты должны простилаться не только под стенами, но также в центре. Иначе напольный настил провиснет от нагрузки. А если внутри хозблока будут находиться верстак, станки или печка, то к столбам и ленте придется пристраивать дополнительный монолитный фундамент в виде плит.

Сэкономить на фундаменте можно, используя для настила пни или покрышки. Прочность и износостойкость авторезины не уступает прочности красного кирпича. Пни со временем разлагаются, но этот процесс можно предупредить посредством предварительной обработки древесины антисептиком.

Мини обсерватория в сарае
Конечно, это не совсем в тему, но может кто-то действительно хочет построить домашнюю обсерваторию. Конечно обсерватория, это громко сказано, если проще, то обычный сарай с раздвижной крышей и приспособлением для установки телескопа. Вообще-то полезная штука, пока нет телескопа, можно велосипеды хранить или еще что-то. А как надумаете купить телескоп, готовая обсерватория у вас уже есть:). Шутка, конечно, но может действительно кому то интересно, как построить сарай с раздвижной крышей. Инструкции здесь приводить не буду, все показано на пошаговых фотографиях, а если действительно заинтересуетесь, внизу есть ссылка на сайт автора этого проекта.
Источник фото www.instructables.com/id/Backyard-Observatory-Using-SkyShed-Plans/
А здесь несколько пошаговых фотографий, как построить бетонное основание для телескопа и адаптер крепления.
Источник фото kurt-zeppetello.blogspot.com/2016/06/building-concrete-telescope-pier.html

























































